杉並区今川中古戸建て

1億8,800万円

東京都杉並区今川4丁目28

西武新宿線「下井草」駅徒歩16分

価格
1億8,800万円
間取り/建物面積
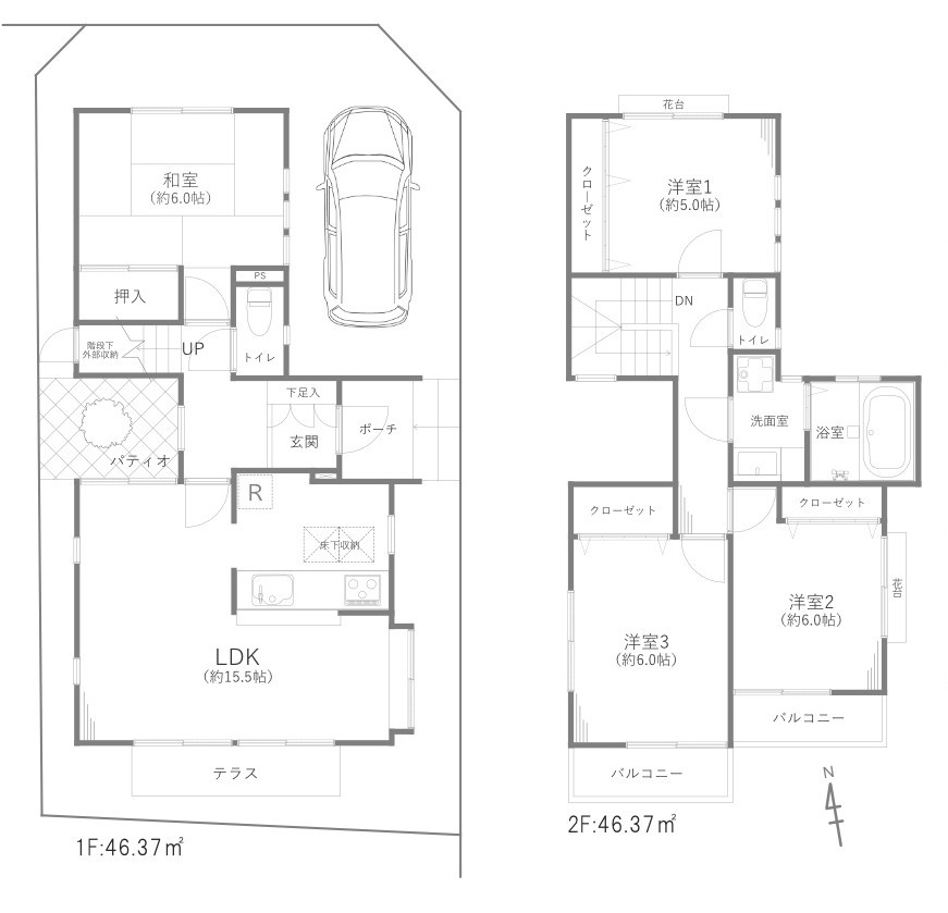
4LDK/183.96㎡
所在地
東京都杉並区今川4丁目28
築年
2009年3月(築16年)
駐車
交通

西武新宿線下井草」駅 徒歩16分

杉並区今川中古戸建ての基本情報

物件名
杉並区今川中古戸建て
価格
1億8,800万円
建物面積
183.96㎡
土地面積
61.92坪(204.72㎡)
築年月
2009年3月(築16年)
総戸数
1戸
所在地
東京都杉並区今川4丁目28
交通

西武新宿線下井草」駅 徒歩16分

杉並区今川中古戸建ての詳細情報

設備条件
設備(その他)
    -
駐車場/月額
有/-
土地権利
所有権
国土法届出
不要
用途地域
-
取引態様
仲介
引渡し
即時
備考
土地面積は204.72㎡(公簿)となっております。中古戸建てながら、室内はとてもきれいです。山信不動産がご紹介している売買戸建ては、下井草周辺にもございます。045-681-4924から、いつでもご連絡下さい。

杉並区今川中古戸建てのコメント(おすすめポイント)

「杉並区今川中古戸建て」のここがイチオシ。土地面積204.72㎡(公簿)の物件。経済的なメリットも大きい、中古の戸建て物件となっております。杉並区にお引越しを検討している方は、下井草近くにある当社お勧めの戸建て情報を是非ご覧下さい。山信不動産が、笑顔になる快適な暮らしをご提供致します。

杉並区今川中古戸建てで募集中の物件

  1. 55.64坪 (183.96㎡)

    18,800万円(303.62万円/坪)

近隣の物件

  1. 杉並区下井草3丁目

    2SLDK (69.95㎡)

    5,399万円

  2. 杉並区桃井2丁目

    1SLDK (75.95㎡)

    7,499万円

  3. 杉並区南荻窪2丁目

    4LDK (100.84㎡)

    6,799万円

  4. 杉並区桃井1丁目

    4LDK (92.74㎡)

    7,990万円

杉並区今川中古戸建て

お気軽にお問い合わせください

無料お問い合わせ

山信不動産株式会社

045-681-4924

10:00〜19:00

(休:毎週水曜日)