プラウドタワー芝浦 3010

65万円

管理 / 共益費 50,000円

東京都港区芝浦4丁目15-1

山手線「田町」駅徒歩11分

都営三田線「三田」駅徒歩13分

都営浅草線「泉岳寺」駅徒歩15分

賃料
65万円
敷金(保証金)
1ヶ月(-)
間取り
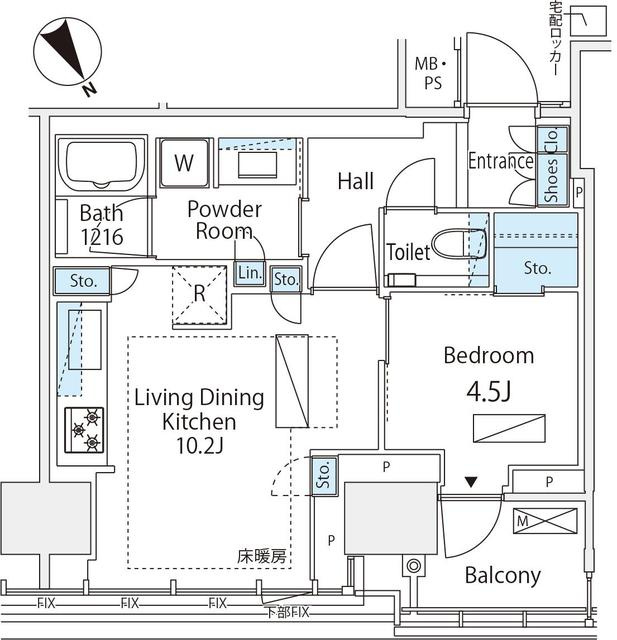
3LDK
向き
西
所在地
東京都港区芝浦4丁目15-1
管理 / 共益費
50,000円
礼金
1ヶ月
専有面積
85.73㎡
築年月
2023年1月(築3年)
交通

山手線田町」駅 徒歩11分

都営三田線三田」駅 徒歩13分

都営浅草線泉岳寺」駅 徒歩15分

物件の特徴

  • バストイレ別

  • 室内洗濯機置場

  • TVモニタ付きインターホン

  • 独立洗面台

  • 浴室乾燥機

  • オートロック

  • エレベーター

  • ネット使用料無料

セールスポイント

【タワーマンション】JR山手線「田町駅」徒歩11分!2023年築、3LDK(85㎡)タイプのタワーマンション!魅力も多い賃貸物件はいかがでしょうか。共用部には宅配ボックス・ゴミ出し24時間OKなどが備わっておりとても充実しています。現在空家ですので、なるべく早くお部屋が見たいという方にもおすすめです。当社で魅力的なお部屋を探すなら、までお問い合わせ下さい

ポイント

担当者のコメント

山田 恵二

【タワーマンション】JR山手線「田町駅」徒歩11分!2023年築、3LDK(85㎡)タイプのタワーマンション!田町駅周辺への引っ越しをお考えなら「プラウドタワー芝浦」。全居室フローリングなので、楽々快適にお掃除ができます。セキュリティ面は、オートロック・TVインターホンなど充実しているので安心して生活できます。室内設備は洗面所独立・浴室乾燥機など豊富に揃っており、過ごしやすいお部屋になっております。現在空家となっておりますので、お早めのお引越しが可能な物件です。この物件は駅まで徒歩11分の立地です。山信不動産株式会社が提供しているお住まいが、田町周辺に満載です。045-681-4924にて当社へ、お気軽にご連絡下さい。横浜市中区、西区・都内湾岸エリアの築浅駅徒歩圏マンション、タワーマンションのことなら山信不動産株式会社にお任せ下さい!築浅、駅徒歩圏にこだわるお客様には山信不動産株式会社にお問い合わせください!

基本情報

保証金
-
敷引 / 償却
- / -
権利金
-
敷金積み増し
-
間取り / 詳細
3LDK
0.0帖/0.0帖/0.0帖/0.0帖/0.0帖/0.0帖/0.0帖/0.0帖/0.0帖/0.0帖
向き
西
専有面積
85.73㎡
バルコニー
(テラス)面積
-
所在階 / 階建て
30階 / 33階建 地下1階
建物構造
鉄筋コンクリート
築年月
2023年1月(築3年)
種別
賃貸マンション
保険会社 / 料金
有  ジャパン少額短期保険  27,000円  / 2年
保証会社 / 料金
必加入 / -
Casa 総賃料の50%〜 更新料:1万円/年 他1社
現況
空家
入居可能時期
即時
その他条件
あんしんサポート24:1万6,500円

設備条件

設備条件
  • 保証人不要 / 2人入居可 / 法人可 / 外国人可 / 室内洗濯機置場 / フローリング / 都市ガス / 公営水道 / 公共下水 / 24時間換気システム / エレベーター / 敷地内ごみ置き場 / アルコーブ / 免震構造 / ガスコンロ / コンロ2口以上 / システムキッチン / ディスポーザー / コンロ3口 / バス・トイレ別 / 追焚機能浴室 / 浴室乾燥機 / 温水洗浄便座 / シャワー / 独立洗面台 / 浴槽 / エアコン / ウォークインクロゼット / ウォークインシューズクロゼット / インターネット対応 / ネット使用料無料 / オートロック / TVモニタ付インターホン / 宅配ボックス / ディンプルキー / 防犯カメラ / 24時間ゴミ出し可

その他

契約期間
定期借家 2年
賃貸区分
定期借家権
更新料
-
更新事務手数料
-
総戸数
-
特優賃
-
取引態様
仲介
物件番号
100177989
管理コード
-
情報更新日
2026年04月16日
次回更新予定日
2026年04月30日
取扱会社
  • 山信不動産株式会社
  • 神奈川県横浜市中区海岸通4丁目20番2  YT馬車道ビル501
  • TEL:045-681-4924
  • 神奈川県知事 (2) 第30994号
  • 公益社団法人全日本不動産協会
備考
【タワーマンション】JR山手線「田町駅」徒歩11分!2023年築、3LDK(85㎡)タイプのタワーマンション!ぜひ一度見ていただきたい、「プラウドタワー芝浦」です。ふたりでの生活は安心感があって快適な生活ができます。現在空家ですので、なるべく早くお部屋が見たいという方にもおすすめです。駅近くに立地する物件で、徒歩11分程でアクセスできます。港区エリアや田町近くでお部屋探しをするなら、当社にお任せ下さい。お客様の求めるお部屋がきっと見つかります。築浅、駅徒歩圏にこだわるお客様には山信不動産株式会社にお問い合わせください!湾岸エリアのタワーマンションならお任せ下さい!!

プラウドタワー芝浦の他の部屋

  1. 1502

    1LDK (40.27㎡)

    30.1万円(2.47万円/坪)

  2. 16階

    2LDK (68.48㎡)

    43万円(2.08万円/坪)

近隣の物件

  1. グローバルフロントタワー

    港区芝浦1丁目

    3LDK (77.11㎡)

    35万円

  2. 新品家具付きマンション西新橋1(KaGood東京)

    港区西新橋2丁目

    1K (21.08㎡)

    18.82万円

  3. Brillia ist 西麻布霞町

    港区西麻布4丁目

    2LDK (110.83㎡)

    63万円

  4. フェニックス新橋

    港区新橋6丁目

    1K (19.52㎡)

    12.2万円

よく見られている物件

  1. SS KNOT(エスエス ノット)

    横浜市中区太田町5丁目

    2LDK (62.20㎡)

    29万円

  2. ザ・タワー横浜北仲

    横浜市中区北仲通5丁目

    2LDK (73.22㎡)

    41.8万円

  3. パークコート文京小石川ザタワー

    文京区小石川1丁目

    3LDK (79.19㎡)

    75万円

  4. パークタワー勝どき サウス棟

    中央区勝どき4丁目

    2LDK (57.83㎡)

    39.9万円

プラウドタワー芝浦

プラウドタワー芝浦

65万円

50,000円

3LDK(85.73㎡)

お気軽にお問い合わせください

無料お問い合わせ

山信不動産株式会社

045-681-4924

10:00〜19:00

(休:毎週水曜日)