ジェノヴィア新横浜スカイガーデン

12.8万円~13万円 管理/共益費 11,000円

神奈川県横浜市港北区新横浜1丁目13-9

横浜線「新横浜」駅徒歩10分

ブルーライン「新横浜」駅徒歩11分

東海道新幹線「新横浜」駅徒歩10分

価格
12.8万円~13万円 管理/共益費 11,000円
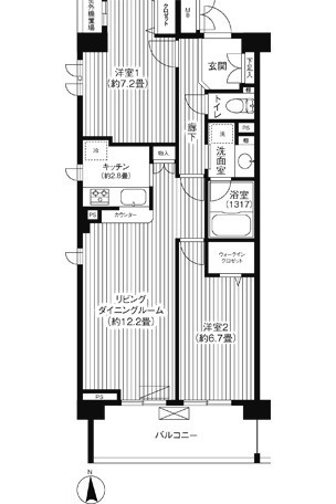
間取り/面積
1K~1LDK/32.20㎡~34.65㎡
所在地
神奈川県横浜市港北区新横浜1丁目13-9
築年
2020年2月(築6年)
駐車
-
交通

横浜線新横浜」駅 徒歩10分

ブルーライン新横浜」駅 徒歩11分

東海道新幹線新横浜」駅 徒歩10分

ジェノヴィア新横浜スカイガーデンの基本情報

物件名
ジェノヴィア新横浜スカイガーデン
価格
12.8万円~13万円
管理/共益費
11,000円
築年月
2020年2月(築6年)
総戸数
66戸
所在地
神奈川県横浜市港北区新横浜1丁目13-9
交通

横浜線新横浜」駅 徒歩10分

ブルーライン新横浜」駅 徒歩11分

東海道新幹線新横浜」駅 徒歩10分

ジェノヴィア新横浜スカイガーデンの詳細情報

設備条件
  • エレベーター
  • インターネット対応
  • オートロック
  • 宅配ボックス
設備(その他)
    -
駐車場/月額
-/-
用途地域
-
戸数
66戸 / -
取引態様
仲介
備考
外装もおしゃれで快適な生活をおくることができるマンションです。11階建てで、街並みに溶け込んだ落ち着いた建物。しっかりとした造りが自慢の築5年のマンション。新しいお住まいをお探しの際は山信不動産株式会社を是非ご利用ください。横浜市港北区にある不動産情報を、条件に合わせてご紹介いたします。

ジェノヴィア新横浜スカイガーデンのコメント(おすすめポイント)

エレベーター付き物件です。こちらの物件は築5年ですが、充実の設備が整っています。設備や外観が充実しているマンションです。お友達を招待するのも恥ずかしくない物件。通勤やお出かけに便利な、徒歩10分に駅のある物件です。住まい選びなら当社まで。新横浜付近の魅力的なお部屋にきっと出会う事ができます。お問い合せは<info@sanshin-est.com>にてお待ちしております。

ジェノヴィア新横浜スカイガーデンで募集中の物件

  1. 301

    10.48坪 (34.65㎡)

    12.9万円(1.23万円/坪)

  2. 607

    9.74坪 (32.20㎡)

    12.8万円(1.31万円/坪)

  3. 805

    10.01坪 (33.12㎡)

    12.9万円(1.29万円/坪)

  4. 907

    9.74坪 (32.20㎡)

    12.9万円(1.32万円/坪)

  5. 1106

    9.74坪 (32.20㎡)

    13万円(1.33万円/坪)

近隣の物件

  1. 横浜市港北区大豆戸町

    3LDK (79.46㎡)

    20.7万円

  2. 横浜市港北区新横浜1丁目

    1DK (43.32㎡)

    12万円

  3. 横浜市港北区綱島東3丁目

    2SLDK (61.71㎡)

    15.6万円

  4. 横浜市港北区樽町1丁目

    2LDK (57.41㎡)

    18.2万円

よく見られている物件

  1. 横浜市中区太田町5丁目

    2LDK (62.20㎡)

    29万円

  2. 港区麻布台1丁目

    1K (38.06㎡)

    50万円

  3. 中央区勝どき4丁目

    1LDK (45.25㎡)

    32.8万円

  4. 横浜市西区みなとみらい4丁目

    2LDK (73.43㎡)

    35万円

ジェノヴィア新横浜スカイガーデン

お気軽にお問い合わせください

無料お問い合わせ

山信不動産株式会社

045-681-4924

10:00〜19:00

(休:毎週水曜日)